鋁單板安裝固定流程
文章出處:廣州長盛建材科技有限公司 人氣:-發表時間:2019-08-01 09:59:00
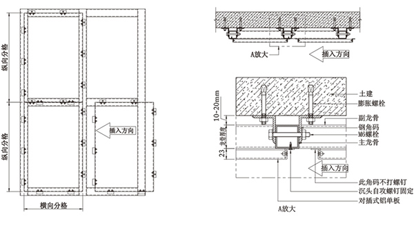
鋁單板安裝固定流程:

(一)放線:固定骨架,將骨架的位置彈到基層上。骨架固定在主體結構上,放線前檢查主體結構的質量

(二)固定骨架的連接件:在主體結構的柱上焊接連接件固定骨架。

(三)固定骨架:骨架預先進行防腐處理。安裝骨架位置準確,結合牢固。安裝完檢查中心線、表面標高等。為了保證板的安裝精度,宜用經緯儀對橫馬豎框桿件進行貫通。對變形縫、沉降縫、變截面處等進行妥善處理,使其滿足使用要求。

(四)安裝鋁單板:鋁板的安裝固定要牢固可靠,簡便易行。

(五)板與板之間的間隙要進行內部處理,使其平整、光滑。




(六)鋁單板安裝完畢,在易于被污染的部位,用塑料薄膜或其他材料覆蓋保護。

以上就是對鋁單板的一些小問題的處理方法,希望大家能夠合理運用,大工程的崩塌往往就是由小問題鑄成,廣州長盛建材專業生產研發鋁單板、鋁蜂窩板、鋁瓦楞板等等系列鋁合金裝飾材料廠家,對于各種鋁板裝飾材料有著豐富的安裝和問題解決經驗,有需要的朋友可以聯系溝通。
下一篇:大理石紋鋁單板怎么樣?上一篇: 鋁單板安裝4個常見問題怎么解決?
此文關鍵字:鋁單板,安裝,固定流程,教程,過程
同類文章排行
- 如何選擇好的鋁扣板品牌_新聞資訊
- 長盛建材-什么是鋁扣板
- 長盛建材_鋁方通在市場上發生轉變
- 長盛建材-鋁方通廠家建材產品不會腐蝕的原因
- 2021年鋁價大幅度上漲鋁蜂窩板價格提到多少?對鋁蜂窩板廠家有什么影響?
- 什么是鋁蜂窩板
- 鋁蜂窩板的優點和缺點有哪些
- 什么是鋁單板
- 2021鋁單板行業發展現狀
- 廣州鋁單板市場行情分析
最新資訊文章
您的瀏覽歷史





