一、氟碳鋁單板介紹
鋁單板種類分為造型名,表面處理名等兩種,氟碳鋁單板屬于表面處理名類,氟碳鋁單板是以氟碳漆加工到鋁單板表面,其特點是防火、防潮、防腐蝕、不變色、不掉漆等等多樣性,氟碳漆是專業簡稱,也稱為氟涂料,氟樹脂等,這種材料引入氟元素,懂化學的朋友都知道氟本是帶電的元素,所以氟碳鋁單板電負性大,可謂是很奇特的一種表面處理材料。
二、氟碳鋁單板規格
常規平板規格:600*1200mm,600*1500mm,1000*2000mm等,
最大平板規格:1200*2400mm(其他更大規格可焊接加工)
常規厚度:2.0-3.0mm
最大厚度:5.0mm
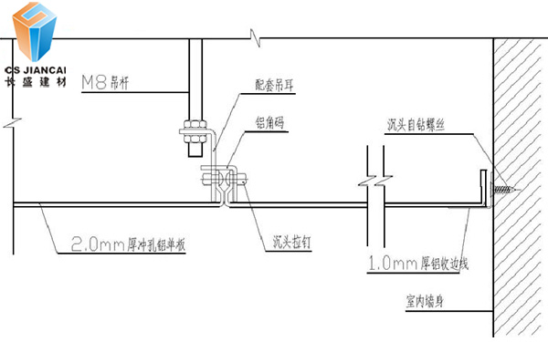
三、氟碳鋁單板安裝
1.測量吊線,
2.焊接腳架,
3.安裝氟碳鋁單板,
4.角碼與角碼錯開,
5.打螺母,
6.打膠封邊,
7.清潔板材完工。
四、氟碳漆的流程
噴底漆-面漆-罩光漆-烤(180-250℃)-質檢多層噴涂工藝以此三次漆(縮寫三噴),
三噴涂的區別,三噴分成一噴底漆、二噴面漆、三噴罩光漆是最為糟糕,二次漆(底漆、面漆)。這個要看鋁材料是加裝于什么環境用以同意了,真正的糟糕的質量或許是三噴的這種表面處置的氟碳漆,這便是現在表面處理技術最為ok的鋁單板。那麼大家留意到了這里有一個細節,便是表面處置時的控制濕度:180--250℃,這個濕度的范圍,
五、適用場合
1.辦公場所,辦公樓、辦公室、接待廳.....
2.娛樂場所,游樂場、KTV、酒吧、休閑會所......
3.企業公司,車間、辦公樓、會議室,食堂,
4.餐飲行業,后廚房、餐廳、包間等等。












相關推薦
咨詢:氟碳鋁單板