中國具有強大研發生產實力的鋁板廠家之一
長盛23年專注鋁單板幕墻裝飾材料研發生產
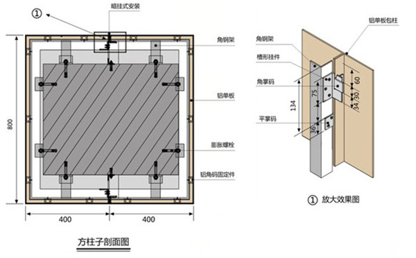
包柱鋁單板詳情

包柱鋁單板是為室內外柱子裝飾定制的產品,包柱鋁單板是一種比較常見的用于立柱墻面裝飾的幕墻材料,包柱鋁單板具有美妙的弧線,而且兼具實用、大方、簡潔的特色,裝飾性能強,易于周圍的環境融為一體。包柱鋁單板分方柱鋁單板和圓柱鋁單板兩種,采用氟碳漆噴涂,達到防腐蝕,抗紫外線,耐氣候強,絕對無毒無害氣體釋放,使用壽命長,完全解決后顧之憂。其優越的環保性能及可塑性是其它材料不可代替的,可根據不同的設計要求加工成不同規格的產品,也可以在產品表面鏤空成不同的圖案。












1、包柱鋁單板 重量輕、鋼性好、強度3.0mm厚鋁板每平方板重8KG,抗拉強度100-280n/mm2
2、包柱鋁單板耐候性和耐腐蝕、抗紫外線。采用kynar-500\hylur500為其料的pvdf氟碳漆可達30年不褪色。
3、包柱鋁單板工藝性好。弧形優美,工藝復雜。
4、包柱鋁單板 涂層均勻、色彩多樣。先進靜電噴涂技術使得油漆與鋁板間附著均勻一致,顏色多樣,選擇 空間大。
5、包柱鋁單板不易玷污,便于清潔保養。氟碳涂膜的非粘著性,使表面很難附著污染物,更具有良好的向潔 性。
6、包柱鋁單板安裝施工方便快捷,低安裝和維護成本。鋁板在工廠成型,施工現不需裁切,固定在架即可。
7、包柱鋁單板可再回收利用,有利環保。鋁板可100%回收,不同于玻璃,石材,陶瓷,鋁塑板等裝飾材料,回收價值高。
| 2016最新包柱鋁單板價: | ![]() |



1、因我司產品分常規產品及工程設計定制產品,采購前請務必聯系客服確定產品的規格尺寸、顏色、厚度、表 面處理等要求。
2、產品價格由鋁板原材料、規格、表面處理、結構復雜度等因素決定,以上報價僅供參考,具體詳情請聯系業 務經理獲悉。
3、我司產品報價均不含稅不含運費,如有要求請聯系業務經理商洽。
4、付款流程:因我司產品為工程定制產品,需預付30%定金后方可生產,生產完成后付清余款即可發貨。
5、因我司產品受市場原材料鋁價影響,具體成交價格依據合同簽訂當日鋁原料而定。

-------------------------------------------------------------
其他用戶還點擊了以下產品
![]() | ![]() | ![]() | ![]() |
| 包柱鋁單板 | 木紋鋁單板 | 石材鋁單板 | 雙曲鋁單板 |
![]() | ![]() | ![]() | ![]() |
| 氟碳鋁蜂窩板 | 木紋鋁方通 | 木紋鋁格柵 | 瓦楞鋁板 |
咨詢:氟碳方形包柱鋁單板