中國具有強大研發生產實力的鋁板廠家之一
23年專注鋁單板幕墻裝飾材料研發生產
包柱鋁單板
包柱鋁單板介紹
長盛建材包柱鋁單板,是一種根據建筑物結構選用的一種幕墻裝飾產品,是金屬幕墻中很重要的一種,像玻璃幕墻,石材幕墻等,都有其限制因素,而包柱鋁單板,形狀,顏色等均靈活多變,能 滿足不同建筑物需求,同時,包柱鋁單板是環保產品,待續重新裝飾的時候,拆除出來后還可以回收利用。
包柱鋁單板是一種比較常見的用于立柱墻面裝飾的幕墻材料,包柱鋁單板根可據現場柱子大小形狀和周圍環境設計不同的弧形以達到很好的美觀效果,而且兼具實用、大方、簡潔的特色,裝飾性能強,容易和現場的環境的其它裝飾融為一體。包柱鋁單板分方柱鋁單板和圓柱鋁單板兩種,采用氟碳漆噴涂,達到防腐蝕,抗紫外線,耐氣候強,絕對無毒無害氣體釋放,使用壽命長,真正達到綠色不保。其優越的環保性能及可塑性是其它材料不可代替的,容易根據不同的現場要求設計加工成不同規格的產品,也可以在產品表面鏤空成不同的圖案。
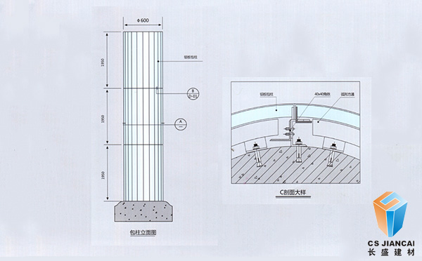
包柱鋁單板規格厚度一般1.5mm-3.0mm,常規弧形半徑為300mm,500mm。產品構造主要由面板、加強筋和角碼組成。包柱鋁單板安裝方式有留縫、密拼。
包柱鋁單板產品展示

(木紋包柱鋁單板)

(亞光白包柱鋁單板)

(石紋包柱鋁單板)

(沖孔包柱鋁單板)

(銀色包柱鋁單板)

(包柱鋁單板結構)
包柱鋁單板工藝
包柱鋁單板加工程序:開料,折彎,(燒焊)成型,打磨,拋光得到半成品,半成品可以選擇靜電粉末噴涂,聚酯油漆噴涂,氟碳噴涂,熱轉印木紋幾種涂層工藝,不過包柱鋁單板,由于經受風雨吹洗,日光照射,所以一般建議黑白色使用聚酯油漆噴涂或者氟碳噴涂,而彩色的涂層,由于其化學成分高,容易褪色,變色,所以一般建議選用氟碳噴涂加工工藝,一般來說,聚酯油漆噴涂黑白灰,銀灰這些顏色能保證10-15年使用壽命,氟碳噴涂,能保證20年左右的使用壽命,過了期限,顏色逐漸會褪色,變淡,到逐漸淘汰,重新裝修。

包柱鋁單板特點
◆ 重量輕、鋼性好、強度高,3.0mm厚包柱鋁單板每平方載重8KG,包柱抗拉強度100-280n/mm2
◆ 耐候性好、耐腐蝕性強、還能有效抗紫外線。包柱鋁單板表面使用kynar-500\hylur500為其料的pvdf氟碳漆可達30年不褪色。
◆ 包柱鋁單板工藝性好,弧形包柱很是優美,工藝難度系數非常高。
◆ 包柱鋁單板表面的涂層均勻、色彩可選多樣化。使用先進靜電噴涂技術使得油漆與鋁板間附著均勻一致,顏色多樣,選擇包柱鋁單板的色彩空間大。
◆ 包柱鋁單板不易玷污,便于清潔保養。氟碳涂膜的非粘著性,使表面很難附著污染物,更具有良好的向潔 性。
◆ 安裝施工方便快捷,低安裝和維護成本,包柱鋁單板在工廠成型,施工現不需裁切,固定在架即可。
◆ 可再回收利用,有利環保。包柱鋁單板使用后可全部回收,不同于玻璃,石材,陶瓷,鋁塑板等不可全部回收材料,包柱鋁單板的回收價值高。

(白色方形包柱鋁單板裝飾效果)
包柱鋁單板安裝
◆ 放線,固定鋼骨架,將骨架的位置彈到基層上。骨架固定在主體結構上,放線前檢查主體結構的質量。
◆ 固定骨架的連接件,在主體結構的柱上焊接連接件固定骨架。
◆ 固定骨架,骨架焊接后進行防腐處理。安裝骨架位置準確,結構牢固。安裝完檢查中心線、表面標高等。為了保證板的安裝精度, 宜用經緯儀對橫梁豎框桿件進行貫通。對變形縫、沉降縫、變截面處等進行妥善處理,使其滿足使用要求。
◆ 安裝鋁板,鋁板的安裝固定要牢固可靠,簡便易行。
◆ 板與板之間的間隙要進行內部處理,使其平整、光滑。
◆ 鋁板安裝完畢,在易于被污染的部位,用塑料薄膜或其他材料覆蓋保護。

(各種造型包柱鋁單板安裝結構圖)
包柱鋁單板的作用
◆ 包柱鋁單板的主要作用,其實與鋁單板對建筑的作用是相同的。
◆ 一方面是包柱鋁單板對建筑起到實際的保護作用,
◆ 另外一方面則是包柱鋁單板對建筑起到良好的裝飾效果。
◆ 用包柱鋁單板使得柱子看起來更具自然質感,更具現代的裝飾風格。
◆ 除卻上面說的作用,包柱鋁單板還有安裝和維護便捷、可以完全回收和利用,使用壽命超長等優點,適合各種大型建筑柱子。
◆ 包柱鋁單板有弧形鋁單板、方形鋁單板,包柱鋁單板的造型取決于柱子的形狀,如圓形柱子使用的是弧形鋁單板,方形柱子使用的是方形鋁單板。所以如果在建筑中有對柱子進行裝飾的,包柱鋁單板則是絕佳的選擇。
◆ 包柱鋁單板是異型鋁單板,有弧形的也有方形的,弧形鋁單板和方形鋁單板在大致上是相同的。
包柱鋁單板裝飾效果

(黃色包柱鋁單板裝飾效果)

(灰白色包柱鋁單板裝飾效果)

(銅色包柱鋁單板裝飾效果)

(沖孔包柱鋁單板裝飾效果)
長盛建材包柱鋁單板優勢
◆ 形狀靈活多變,能滿足不同建筑物結構的裝飾需求
◆ 厚度根據板式合理選擇,使得成本合理化
◆ 涂層顏色風格各異,可來色定制加工
◆ 加工性能好,品質上乘,性價比高
◆ 完善的包裝方式,木箱包裝,板面白膜保護,泡泡膠包裝,木箱裝訂
◆ 12年工作經驗工程設計師全程配合,提供各種技術支持
◆ 25年鋁天花生產經驗廠家,先進設備,德國全自動靜電粉末噴涂配置


1、因我司產品分常規產品及工程設計定制產品,采購前請務必聯系客服確定產品的規格尺寸、顏色、厚度、表 面處理等要求。
2、產品價格由鋁板原材料、規格、表面處理、結構復雜度等因素決定,以上報價僅供參考,具體詳情請聯系業 務經理獲悉。
3、我司產品報價均不含稅不含運費,如有要求請聯系業務經理商洽。
4、付款流程:因我司產品為工程定制產品,需預付30%定金后方可生產,生產完成后付清余款即可發貨。
5、因我司產品受市場原材料鋁價影響,具體成交價格依據合同簽訂當日鋁原料而定。

-------------------------------------------------------------
其他用戶還點擊了以下產品
| ![]() | ![]() | ![]() |
| 包柱鋁單板 | 木紋鋁單板 | 石材鋁單板 | 雙曲鋁單板 |
![]() | ![]() | ![]() | ![]() |
| 氟碳鋁蜂窩板 | 瓦楞鋁板 | 木紋鋁方通 | 木紋鋁格柵 |
咨詢:包柱鋁單板