廣州長盛建材生產的弧形沖孔鋁單板,采用先進的數控沖孔設備激光雕刻穿孔,在弧形沖孔鋁單板的表面上鉆成各種形狀的孔洞,滿足客戶對鋁板裝飾的時尚個性追求。在生產制造弧形沖孔鋁單板之前經過多個部的設計要求門工作配合。
1.產品構造
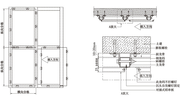
?產品構造主要由面板,加強筋,角碼三部分組成,弧形沖孔鋁單板安裝方式有留縫,密拼。
2.選材用料
弧形沖孔鋁單板一般采用優質1100、3003、5005單層鋁合金板為基材。表面處理有氟碳噴涂、聚酯噴涂、粉末噴涂。表面顏色可由廠家提供標準色卡供客戶選擇。
3.產品規格
厚度:1.5mm,2.0mm,2.5mm,3.0mm,
長寬:最大尺寸可達1500x4000mm,
孔徑:2.0mm-10mm,
弧度:180度(以內均可定制)
4.產品特點
(1)形狀,尺寸,孔型,沖孔密度,顏色等可定制;
(2)密度小,重量輕,應用范圍廣泛,可用于室內天花吊頂;
(3)結構設計時考慮到了安裝施工的便捷性,維護方便;
(4)沖孔通風性強,利于空氣流通,改善室內空氣質量;
(5)采用優質鋁合金材質,強度高,不易變形;
(6)涂層均勻,光澤亮麗,長期使用不易褪色;
(7)鋁合金材質回收價值高,綠色環保;
5.應用范圍
(1)高級寫字樓
(2)辦公室走廊
(3)機場,車站
(4)地鐵廠房,醫院
(5)會所,銀行,商場
(6)體育場館,建筑物的大堂,展覽館
用戶須知
用戶需要提供設計圖紙,規格,平方數,厚度,造型,沖孔/穿孔率,生產進度,物流配送安裝等才能達到實際使用場所不同。大小疏密的孔形變換搭配使鋁單板板面產生生動感,種類多樣。顏色、孔型、沖孔率等的設計可按需定制,滿足不同的個性化需求。



?

(弧形沖孔鋁單板)

(弧形沖孔鋁單板2)

(弧形沖孔鋁單板邊角)

(沖孔鋁單板詳圖4)


(弧形沖孔鋁單板吊頂)
弧形沖孔鋁單板吊頂裝飾搭配色調合理,展現出優雅簡單的特殊裝飾氣質,

(弧形沖孔鋁單板展廳吊頂效果)
弧形沖孔鋁單板展廳吊頂的使用,可根據展廳的展示的物品文化和社會流行來搭配設計造型,展示弧形沖孔鋁單板復雜造型獨特而高貴亮麗品質。

(弧形沖孔鋁單板效果圖2)
弧形鋁單板幕墻
我們中國改革開放后,國內的各種行業都迎來了飛速的發展,建材行業確是發展在最后的一項,在各種行業發展迅速的時候,建筑行業還在慢慢的摸索新航線,直到鋁合金生產制造的產生,出現了一系列的鋁合金建筑板材,伴隨著鋁單板逐漸的被人們所認識和接受,這種具有諸多顯著自身優勢的新型建材雖然在國內的起步時間較晚,但是它的發展速度卻絲毫不落于其它行業當中的任何一種產品。在鋁單板的諸多系列產品當中,弧形鋁單板表現具有優越性,它由于造型美觀,因而深受不少大型商場、藝術場所以及酒店的青睞。
弧形鋁單板幕墻
在北京某大型藝術館從事設計的金老師說,以前設計了多年的各種建筑藝術工程,也做過不少的藝術館,但是以前的工程做出來因為材料的缺乏,做出來難免不如人意,總是會感覺哪里不夠,需要改正,特別是安全方面,以前大多數建筑材料都是以木材石材作為原料,所以特別遺憾的就是怕火,哪怕你做的再精美絕倫,一把火那就什么都沒了,圓明園就是一個慘痛的歷史教訓,要論其裝飾效果給自己印象最深的,還是要數現在使用弧形鋁單板幕墻的藝術館了。
弧形沖孔鋁單板幕墻
科技在發展,社會在向前邁進,各種藝術建筑也發生著重大的改變,裝飾建材也在發生著很大的變化,從當初的普通裝飾,再到如今的弧形鋁單板,這其中的變化自己都是歷史上的一大跨越。藝術館使用弧形鋁單板幕墻,精美的弧形讓整體造型更顯得流暢優美,一改傳統建筑裝飾那種中規中矩的裝飾風格,為世界建筑帶來全新建筑理念和形態。
鏤空雕花鋁單板幕墻
藝術建筑的裝飾更多的是要在顏色、造型、弧度呈現出壯麗的美感,要莊嚴而又不失文雅,這是我們中國幾千年來不變的追求,弧形鋁單板應用于展廳、藝術館、體育館中完美的展現出了雄偉而不失美感,不僅可以實現板材厚度、顏色以及弧度的個性化定制,而且它極佳的耐腐蝕、抗紫外線以及長期不褪色等優勢,已經是時下眾多建材當中的佼佼者了。
此外,由專業鋁單板廠家比如云象建材這樣具有實力的鋁單板品牌所生產出來的弧形鋁單板,質量也更加有保障,經久耐用,是真正追求高性價比的藝術場所建材不二之選。
相關推薦
咨詢:弧形沖孔鋁單板